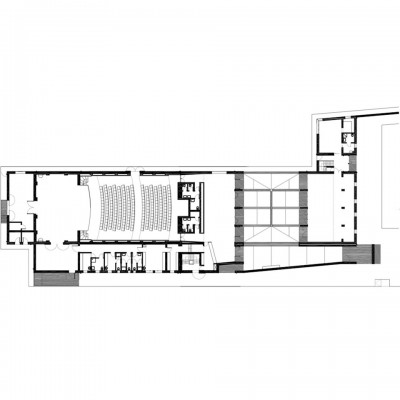
TEATRO E POLIFUNZIONALE – OSOPPO UD

Un centro ricreativo giovanile (oggi denominato “La corte di Osoppo”), comprendente un teatro da 232 posti con torre scenica, camerini, foyer / spazio espositivo e sala polifunzionale. Il tema principale è quello di un edificio introverso, con facciate esterne severe, che, nel percorso di accesso, si svela nel suo rapporto con il contesto; in particolare la corte interna pavimentata – vero cuore del progetto – pone in relazione il portico d’ingresso, la sala polifunzionale ed il foyer con il parco e le montagne, e diventa nella bella stagione spazio aggiunto per le attività che si svolgono nel complesso architettonico.
Committente: Parrocchia di Santa Maria ad Nives – Osoppo UD
Progettazione: 2001 – 2009   Realizzazione: 2003 – 2011   Arredi: 2012
Collaboratori: Impianti: ing. Ugo Fonzar – Aquileia UD ing. Alessandro Driussi – Codroipo UD Strutture: ing. Maurizio Liani – Codroipo UD Acustica: arch. Giovanni La Porta ing. Dino Abate – Pordenone